Maite filter
旋流脫氣除汙器
免費定製方案 免費到廠考察 免費獲取報價!
產品說明:螺旋脫氣除汙器(水氣分離器)水係統中的空氣對係統中的水泵、鍋爐、熱交換器、製冷機等設備及部件易產生腐蝕和損壞,使用壽命及效率大大降低。僅在係統高點設置排氣閥效果不佳,當壓力減少時被溶於水中氣體會重新形成氣泡,尤其在水泵前會有大量氣體分離出來...
榴莲视频成人APP過濾設備攜手各行業打造滿足榴莲视频污版下载需求產品的保障
螺旋脫氣除汙器(水氣分離器)水係統中的空氣對係統中的水泵、鍋爐、熱交換器、製冷機等設備及部件易產生腐蝕和損壞,使用壽命及效率大大降低。僅在係統高點設置排氣閥效果不佳,當壓力減少時被溶於水中氣體會重新形成氣泡,尤其在水泵前會有大量氣體分離出來。
產品簡介:
螺旋脫氣過濾器利用氣水分離、沉降、過濾等機理。當冷卻水、熱水、冷凍水係統中水進入螺旋脫氣過濾器時,體積擴大,流速急劇降低,水中氣泡分離上升至聚氣區,小氣泡吸附在分離板上,當形成大氣泡上升至聚氣區後通過自動排氣閥排除。帶有汙物的循環水在過濾器中汙物隨水流沉降,通過分離板後汙物得到了加速,在濾芯的兩側迅速沉降在存汙區,因存汙區容汙量大,隻需定期開啟排汙閥。經過空氣和汙物分離較幹淨的水經濾芯流入水泵入口,由於水泵及水流的衝擊下濾芯有較小的振動,能將個別貼附在濾芯外側的汙物振落,達到自潔的目的。
通過一個裝置起到的淨化水係統中的氣泡和雜質的功能。由於這個整合的舉動,所有的氣泡和微小的雜質將會被永久的脫除,保持係統不受氣泡和雜質得困擾。它與傳統的過濾器和除汙器工作方式不同,維護很少。這個裝置是否能夠在供熱係統裏發揮它的作用取決於不同方麵。榴莲视频成人APP的技術專家會根據實際情況給予您好的解決方案。
脫水除汙器必須安裝在主線上,而且好為係統溫度高點。對於供熱係統,佳位置是供熱機組的出口。對於製冷係統,溫度高點在製冷機組的回水管上。
技術參數:
(1)壓力範圍:0.6、1.0、1.6MPa;
(2)高使用溫度:95℃;
(3)規格型號:DN50~DN1500;
(4)流量範圍:7-20000m3/h
(5)過濾網常用規格:8、10、14、20、30、70、150目
(6)排氣率:99%
(7)排汙率:99%
(8)處理效果: 除砂直徑:>0.1mm、出水濁度:≤10NTU、水頭損失:<0.02Mpa
(9) 進水水質:原水濁度:≥300NTU進水壓力:≤0.25Mpa
(10)特殊規格按用戶要求特製。
設備特點:
● 脫除循環係統中的氣泡和氣團
● 大幅減少係統次注水後的調試時間,不需要額外的排氣閥
● 可在係統運行的情況下排除汙物
● 可以脫除小至5微米(=0.005MM)的汙物雜質
● 同類產品中低的壓降比
● 不會造成不必要的係統停機
● 廣泛適用於不同壓力,溫度和材質
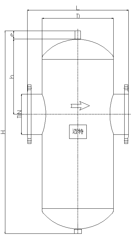
設備簡圖:

選型參數:
型 號 | 管徑DN(mm) | 流量(m3/h) | 外型尺寸(mm) | 重 量 (Kg | ||||
H | h | D | e | L | 29 | |||
MQT-S50 | 50 | 25 | 510 | 160 | 220 | 20 | 470 | 33 |
MQT-S65 | 65 | 40 | 510 | 150 | 220 | 20 | 470 | 57 |
MQT-S80 | 80 | 55 | 640 | 200 | 330 | 25 | 640 | 61 |
MQT-S100 | 100 | 95 | 640 | 210 | 330 | 25 | 640 | 97 |
MQT-S125 | 125 | 145 | 830 | 290 | 426 | 25 | 780 | 114 |
MQT-S150 | 150 | 220 | 830 | 300 | 426 | 25 | 780 | 189 |
MQT-S200 | 200 | 360 | 980 | 360 | 610 | 25 | 890 | 300 |
MQT-S250 | 250 | 575 | 1200 | 400 | 610 | 50 | 1010 | 390 |
MQT-S300 | 300 | 810 | 1580 | 450 | 710 | 50 | 1200 | 563 |
MQT-S350 | 350 | 1030 | 1720 | 500 | 810 | 50 | 1420 | 670 |
MQT-S400 | 400 | 1350 | 1810 | 550 | 920 | 50 | 1220 | 870 |
MQT-S450 | 450 | 1710 | 2030 | 610 | 1020 | 50 | 1620 | 1118 |
MQT-S500 | 500 | 2120 | 2170 | 660 | 1120 | 50 | 1710 | |
備 注 | 設備壓力默認為1.6Mpa,MQT-S40、MQT-S50默認為螺紋連接,如有特殊要求,訂貨時請說明,也可根據榴莲视频污版下载要求訂做其它規格的設備。 | |||||||
細節展示:

安裝注意事項:


MQT-S基本型 MQT-XS 可拆卸型
1. 設備必須水平安裝,安裝時注意箭頭指示方向,箭頭指示方向即為水流方向。
2. 由於該設備工作過程中無運動部件,免維護,因此設計、安裝時可根據現場實際情況布置。
3. 設備進出口的管道上,應以靠近管口處設置管道支架;直接與容器管口相連接的大於或等於DN150的閥門下麵宜設置支架。
4螺旋除渣器進出口均為國標法蘭。設備進水口、出水口均需安裝 閥門。
8 使用說明
1. 正常工作時,需開啟進、出水閥門,關閉排汙閥。
2. 排汙時打開排汙閥,直到流出清水。
3. 排汙完畢後,關閉排汙閥即可。
4. 如排汙壓力不足,可關閉出水口處的閥門。
5. 安裝時應注意管道及水流方向。
6. 平麵布置需要流出管理人員操作空間。由於該設備工作過, 程無, 運動, 部件,即該設備免維護。但需保持入口負荷穩定,排汙閥開閉用力均勻。避免人為損壞
榴莲视频成人APP過濾設備攜手各行業打造滿足榴莲视频污版下载需求產品的保障
| 設備原理:: | 絲網攔截 | 設備型號:: | MQT |
| 額定流量:: | 0~2000m3/h | 設計壓力:: | 0.4~1.6mpa |
| 設備材質:: | Q235 / 304 /316L | 適用溫度:: | 0~180℃ |
| 適用範圍:: | 市政供暖管道、溫泉井供水係統、鍋爐供水供熱係統、石油天然氣開發、煤層氣開采 |